Строительство мастерских и пищеблока ОГАПОУ "Чернянский агромеханический техникум", п. Чернянка, ул. Орджоникидзе, д.2. 2021 г.
Разработана проектная документация, АГО, получено положительное заключения государственной экспертизы, ведется авторский надзор.
Участок проектирования размещается в восточной части поселка городского типа Чернянка, его площадь составляет 4787,06 кв.м.
На территории присутствуют ветхие здания образовательного назначения, подлежащие сносу.
Существующее состояние квартала - малоэтажная и среднеэтажная жилая застройка многоквартирными домами, четырехэтажный главный корпус ОГАПОУ «Чернянского агромеханического техникума», одноэтажная промышленная застройка. С западной стороны проходит улица местного значения - Чкалова. С севера участок граничит с одноэтажными промышленными кирпичными постройками. С востока - Сахарный завод. С юга - среднеэтажные жилые многоквартирные дома.
Сведения о функциональном назначении объекта: Ф4.1 – учебные лаборатории; Ф3.2 -столовая; Ф5.2 - стоянки для автомобилей без технического обслуживания и ремонта.
Новый корпус ОГАПОУ «Чернянский агромеханический техникум» включает в себя мастерские и пищеблок. Количество учащихся 250 человек (100 женщин и 150 мужчин), преподавательский состав и служебный персонал численностью 13 человек.
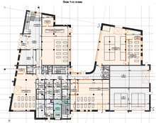
Первый этаж включает в себя: коммуникационную зону и вспомогательные помещения, 4 лаборатории, 2 гаража. Второй этаж включает в себя: столовую, работающую на сырье и 2 лаборатории. На третьем этаже располагаются технические помещения.
Генпроектировщик- ООО "БЕЛГОРОДОБЛПРОЕКТ".
